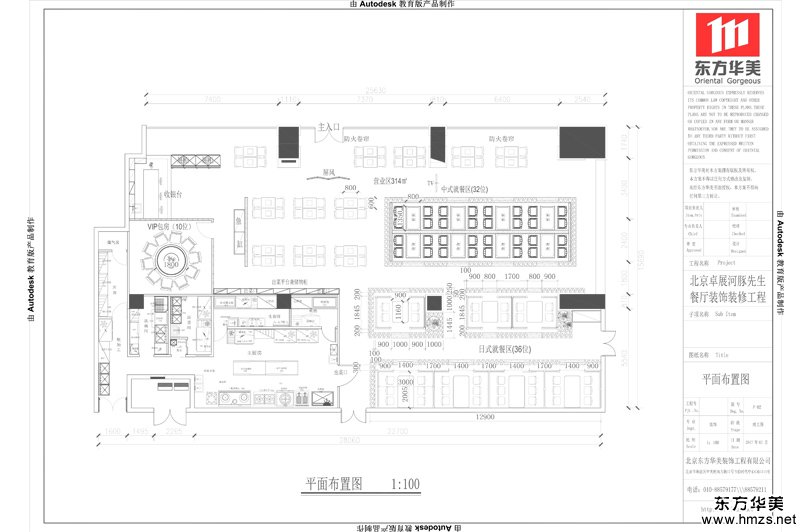
河豚先生卓展裝修工程圖
| 項目名稱 | 河豚先生卓展裝修工程圖 | 行業屬性 | 酒店/餐飲/會所 |
| 項目地址 | 北京市海淀區五棵松藍色港灣購物中心 | 項目造價 | 85萬 |
| 主關鍵詞 |
▄原建筑結構分析: 受日本和式建筑影響,餐廳設計時,講究空間的流動與分隔,流動則為一室,分隔則分幾個功能空間,式格子拉門的設計使空間看起來更加通透,又不失隱秘性??臻g中總能讓人靜靜地思考,禪意無窮;古色古香的和風面料,為現代簡約的居室空間增添了民族風味。天然質材也是這次日式風格裝修中最具特點的部分。
▄設計需求: 河豚美食文化來自祖先傳承,也風靡日本和食文化界。所以要注重河豚美食文化的體現,注重傳統文化的體現,兼有日式的追求,淡雅節制、深邃禪意的感覺和中式的古樸大氣風范。其次餐廳的布置帶給食客以優雅、清潔,有較強的幾何立體感。
▄設計風格定位: 主要采用了日式裝修風格,原封不動地表露出木材質地、板格或飾面,著意顯示素材的本來面目,加以精密的打磨,表現出素材的獨特肌理--這種過濾的空間效果具有冷靜的、光滑的視覺表層性,卻牽動人們的情思,使城市中人潛在的懷舊、懷鄉、回歸自然的情緒得到補償。采用了較多的傳統裝飾如日式推拉格柵,復古顏色的溫暖,給食客帶來了口腹之欲。


北京鑄誠大廈辦公裝修工程
北京銀河SOHO辦公裝修工程
301醫院裝修工程
